Käytämme evästeitä käyttökokemuksen parantamiseen, sivuston kehittämiseen sekä markkinointi tarkoituksiin.

Skip Navigation Links.
Expand ROTONET tukkuROTONET tukku
Expand Rannanhoito ja ruoppausRannanhoito ja ruoppaus
Expand Hirsikehikot, Hirsimökit ja TalotHirsikehikot, Hirsimökit ja Talot
Expand Laiturit ja tarvikkeetLaiturit ja tarvikkeet
Expand Saunan vesikouru ja saunakaivoSaunan vesikouru ja saunakaivo
Expand Kesäkeittiöt ja huvimajatKesäkeittiöt ja huvimajat
Expand SaunamökitSaunamökit
Expand PihasaunatPihasaunat
Expand AitatAitat
Expand LiuskekivetLiuskekivet
Expand SisustuskivetSisustuskivet
Expand PihakivetPihakivet
Expand Koti ja SisustusKoti ja Sisustus
Expand TerassitTerassit
Mökkiremontti
Expand Tulisijat ja hormitTulisijat ja hormit
Expand Kiukaat ja padatKiukaat ja padat
Expand Pihauunit ja grillitPihauunit ja grillit
Expand VarastotVarastot
Expand Luonto majatLuonto majat
Expand Puuceet ja laitteetPuuceet ja laitteet
Expand LeikkimökitLeikkimökit
Expand MOTTI klapituki ja puuvarastotMOTTI klapituki ja puuvarastot
Expand Raksa työasemaRaksa työasema
Expand PerustusmuotitPerustusmuotit
Expand VesipumputVesipumput
Expand AgregaatitAgregaatit
Expand LumityökalutLumityökalut
Asennuspalvelu
Innovaatiotukku.fi
perustusmuotti

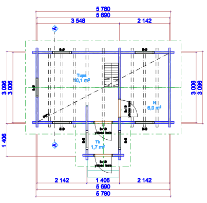
Mummonmökki parvella

 

 

Idyllinen 2-kerroksinen Mummonmökki, jossa tupa, makuuhuone sekä parvi. Parvi koko rakennuksen alalla. Tämä malli saatavana myös saunamallina.

 

 

Toimitussisältö

Seinähirret

Katto- ja lattianiskat

Kattolaudat, raakapontti

Sisäkattopaneelit

Lattialaudat

Puuvalmiit ikkunat ja ovet (2K-lämpölaseilla)

Karapuut ovi- ja ikkunapieliin

Pääty- ja sivuräystäslaudat

Parven rappuset

Parven kaiteet

Kiinnitystarvikkeet

Kierretangot

Hirrenväli-ja nurkkatiivisteet (90 mm:n hirrestä ylöspäin)

Kokoamisohjeet

Arkkitehtipiirustukset rakennuslupaa varten

 

 

Hirsivaihtoehdot

Hirsivahvuus 58 × 145 mm (mänty)

Kysy tarjous

Rakennusala 20 m2

Kerrosala 20 m2

 

 

Hirsivahvuus  90 × 170 mm (lamellihirsi)

Kysy tarjous

Rakennusala 20 m2

Kerrosala 20 m2

 

 

Hirsivahvuus 134 × 190 (lamellihirsi)

Kysy tarjous

Huom! Avattavat ikkunat MSEA sekä kiinteät ikkunat 3MEKA, valkoinen

Rakennusala 20 m2

Kerrosala 20 m2

 

 

 

Lisävarusteet

Kattohuopapaketti

Alushuopa Tarra Light, Palahuopa Plano Natur, räystäs- ja harjahuopa, räystäspellit sekä kiinnitykseen käytettävät naulat. Väri: Musta

Takka, Smidson Vigo

Valmis perustuspilari

Valmiilla pilariperustuksella rakennat hirsimökin ja terassin perustukset kustannustehokkaasti ja vaivattomasti! 

Rahti määräytyy toimituspaikan mukaan

Valmistamme tuotteita myös mittatilauksena

 

 

Kaipaatko lisää tietoa tuotteistamme, toimitusvaihtoehdoista, toimitusajoista ja asennuspalvelusta.

 

 

Varaa ilmainen suunnittelu tai mökkikatselmus

 

 

Soita 044-3311 577      

 

 

Tulosta

ROTONET on enemmän kuin nettikauppa. Tuotteiden lisäksi saat meiltä myös asennuspalvelun. Kaikki tuotteet tehtaan hinnoilla. Tutustu alan uutuuksiin ja laajaan mallistoon.